Casa semindipendente in vendita

Meldola,
€ 360.000
4 locali 4 locali
179 Mq 179 Mq
3 bagni 3 bagni

Casa semindipendente in vendita

Meldola,

Descrizione annuncio

- MELDOLA -

Immersa nel centro storico di Meldola, a pochi passi dal Castello e da Piazza Orsini, è disponibile questa signorile casa di corte, ideale per chi cerca cura nei dettagli e comfort.

La sua struttura rispecchia la storia del paese, nascendo come canonica: è una 'casa green' in Classe Energetica A4, grazie alla ristrutturazione totale di fine 2024, in cui sono stati completamente rifatti tetto, fognature, infissi in triplo vetro e impiantistica.

Le finiture pregiate sono molteplici: ad esempio vi sono porte scorrevoli con vetrate Tiffany e una scenografica scala a chiocciola in ferro battuto che conduce al piano primo.

E' da sottolineare che la cura non sottende solo all'estetica, ma anche alla funzionalità: per questo è stato inserito un cappotto interno, adatto all'isolamento acustico e termico, zanzariere, riscaldamento a pavimento e predisposizione per gli impianti di aria condizionata, allarme e aspirazione centralizzata.

Per un migliore risparmio energetico, vi sono pannelli fotovoltaici per la produzione di elettricità: inoltre è fornita di due caldaie installate nel 06/2024, nel caso si volesse usufruire anche dell'impianto a gas.

Essa dispone di tre ingressi: uno nella corte comune, uno dalla zona servizio ed uno dalla corte privata pavimentata, protetta da piante per una maggiore privacy, alla quale è possibile accedere tramite box privato.

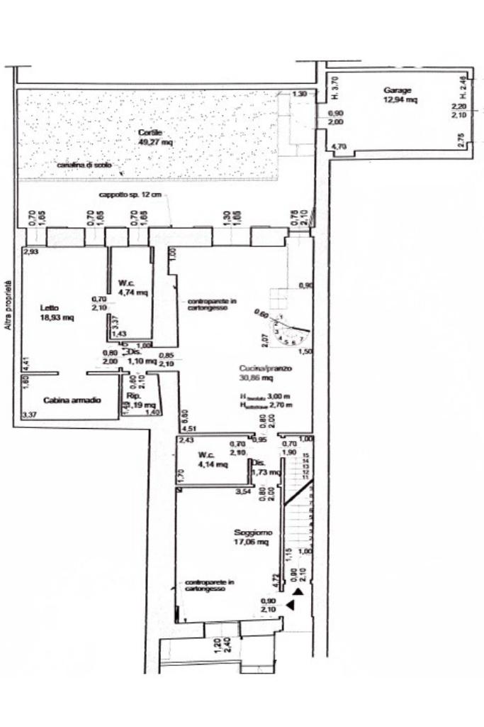
Al piano terra troviamo l'accogliente zona giorno, divisa in ampio soggiorno e cucina abitabile: proprio in quest'ultima è presente la canna fumaria; qui vi è il primo bagno, con ventola di aspirazione e box doccia.

Sul piano è presente la prima camera matrimoniale, con una comoda cabina armadio ed uno splendido bagno privato finestrato, munito di box doccia.

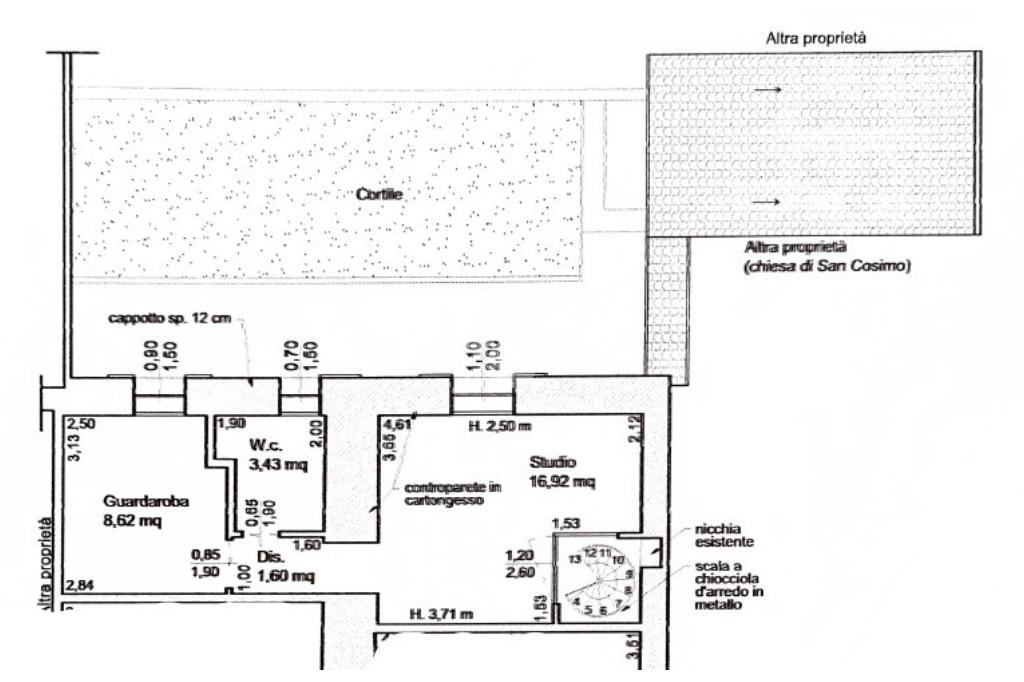
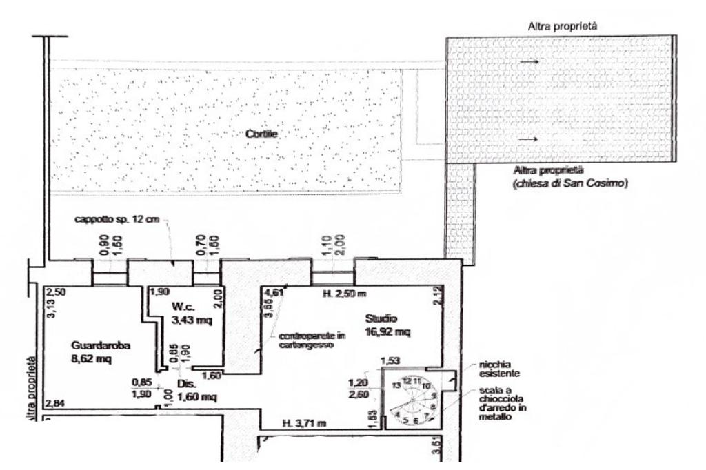
Salendo al piano superiore, vi è la seconda camera da letto matrimoniale che si affaccia sulla propria corte: comunicante ad essa, vi è uno studio, ideale come sala hobby o come spazio per la propria attività.

Sul piano c'è il terzo bagno finestrato e dotato di box doccia: è da apprezzare l'attenzione nello scegliere sanitari in stile retrò in ogni servizio, preservando così armonia e carattere nell'abitazione.

Accessibile anche dall'esterno, alpiano seminterrato, vi è infine la tavernetta, in parte adoperata a lavanderia.

La soluzione viene venduta comprensiva di arredo.

Ferdinando Formisano

Seguici sui social per non perdere le ultime novità immobiliari!

Facebook -> 'GRUPPO TECNOCASA FORLIMPOPOLI'

Instagram -> 'TECNOCASA_FORLIMPOPOLI'

Mostra tutto

Nelle vicinanze

Trasporto pubblico Trasporto pubblico
Trasporto pubblico
140 m
IRST
IRST
350 m
Scuole Scuole
scuola media Dante Alighieri
430 m
Scuola Elementare Edmondo De Amicis
430 m
Farmacia Farmacia
Farmacia Comunale
70 m
Farmacia
160 m
Ospedali Ospedali
I.R.S.T.
430 m
Istituto Scientifico Romagnolo per lo Studio e la Cura dei Tumori (I.R.S.T.) S.r.l.
460 m
Negozi Negozi
Il Fornaio
70 m
Panificio Teodorani
90 m
Mini Market Fattini
290 m
Ristoranti Ristoranti
John Ashfield Restaurant E Pizza
30 m
Pizzeria Crostineria "Da Asporto"
180 m
Agriturismo Colombarina
1,4 Km
Mostra tutto

Caratteristiche

Rif.:
61155569
Piano:
Basso di 3 con ascensore
Totale piani:
3
Box:
1
Camere da letto:
2
Arredamento:
Assente
Mostra tutto
Prezzo Prezzo
€ 360.000
Rata mutuo Rata mutuo
€ 1.709 / mese
Spese annue Spese annue
€ 0
Proponi il tuo prezzoProponi il tuo prezzo
Immobile valutato con T·Valuta

Classe Energetica

A4
A4
A4
A4
A4
A4
A4
A4
A4
EP globale non rinnovabile:
26.74 kW h/m² anno
EP invernale del fabbricato:
EP estiva del fabbricato:
Anno di costruzione:
1960
Riscaldamento:
Autonomo
Tipo impianto:
A pavimento
Tipo alimentazione:
Metano

Ti interessa visionare l'immobile?

Fissa un appuntamento  Fissa un appuntamento

Richiedi informazioni

Clicca su Leggi per aprire l'informativa
* Questi campi sono obbligatori

Calcola il tuo mutuo

Semplice e senza impegno
Anticipo

( % )
Mutuo

( % )

pochi semplici passi

inserisci i tuoi dati
Questionario completato
Grazie per aver richiesto un appuntamento senza impegno con un nostro Consulente del Credito e Assicurativo.

Hai inserito correttamente tutti i dati necessari e a breve riceverai una e-mail con un link da convalidare per inviare i tuoi dati.
Affiliato
Studio Artusi Srl
Via Duca D'Aosta, 110 47034 Forlimpopoli (FC)

Il nostro staff


  • Greta Brunelli
    Affiliata

  • Ferdinando Formisano
    Affiliato

  • Sara Rocchi
    Coordinatrice
Via Duca D'Aosta, 110 47034 Forlimpopoli (FC)
Zona: Forlimpopoli-Meldola-Bertinoro
Mostra su mappa
Orari: dal Lunedì al Venerdì 9.00-13.00/15.30-20.00 Sabato dalle 9.00-13.00
Affiliato
Studio Artusi Srl
Via Duca D'Aosta, 110 47034 Forlimpopoli (FC)

2026 Tecnocasa Franchising S.p.A. - P. IVA 08365160152 - Via Monte Bianco 60/A 20089 Rozzano (MI). Ogni agenzia ha un proprio titolare ed è autonoma. Privacy policy | Policy utilizzo | Cookie policy