Casa indipendente in vendita

Civitella Di Romagna, Viale Martiri Partigiani
€ 250.000
6 locali 6 locali
250 Mq 250 Mq
3 bagni 3 bagni

Casa indipendente in vendita

Civitella Di Romagna, Viale Martiri Partigiani

Descrizione annuncio

- CIVITELLA DI ROMAGNA -

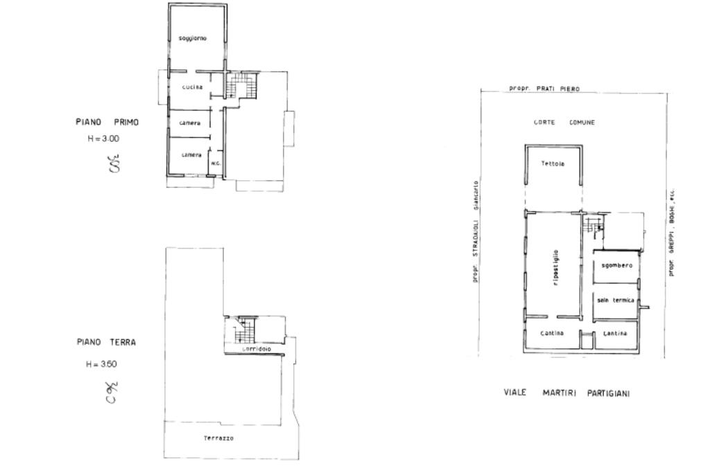
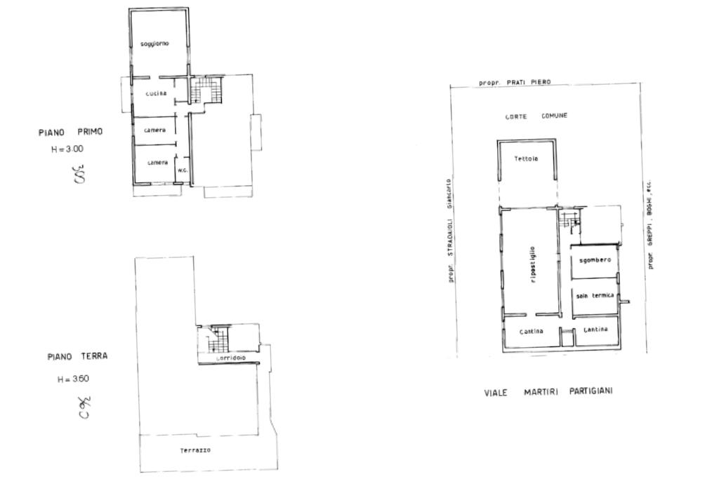
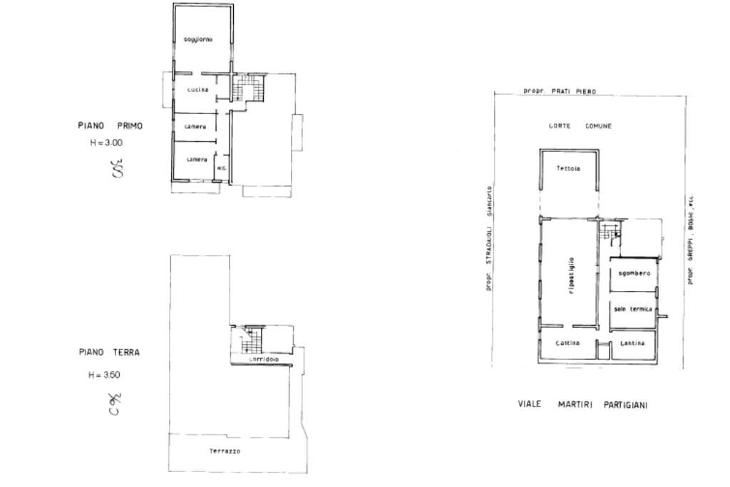
Nel borgo medioevale di Civitella, proponiamo in vendita questa casa trifamiliare libera su quattro lati dai comodi spazi abitativi.

La casa è divisa in due appartamenti al piano primo e laboratorio di oltre 170mq al piano terra; è da precisare che le utenze di acqua, luce e gas sono in comune per le due abitazioni, mentre sono separati dall'attività.

L'abitativo si sviluppa tutto su un piano e offre la possibilità di unificare i due appartamenti in una unica unità, essendo comunicanti tra loro tramite un pratico disimpegno comune; inoltre il locale attività può essere riconvertito in abitazione, creando un terzo appartamento.

Esternamente la casa è stata ristrutturata nel 2012, rifacendo tetto e gronde.

Il primo appartamento ha una zona giorno composta dal salotto con camino, caratterizzata da una pavimentazione in cotto, oltre a una sala pranzo con cucinotto separato; nella zona notte è presente una camera da letto e il bagno finestrato.

Il secondo appartamento è diviso in sala pranzo con cucinotto separato, illuminati da una porta-finestra che si apre sul balcone; inoltre vi sono due camere da letto matrimoniali, di cui una munita sempre di balcone privato.

Comunicante con l'abitazione, al piano seminterrato sono presenti garage doppio e cantina, che si prestano ad essere destinati ad una ulteriore zona relax e deposito.

Generosi spazi abitativi, comode zone servizio: la casa giusta per le esigenze delle famiglie più numerose!

PER QUALSIASI INFORMAZIONE O PER FISSARE UN APPUNTAMENTO CONTATTACI!

Seguici sui social per non perdere le ultime novità immobiliari!

Facebook -> 'GRUPPO TECNOCASA FORLIMPOPOLI'

Instagram -> 'TECNOCASA_FORLIMPOPOLI'

Mostra tutto

Nelle vicinanze

Trasporto pubblico Trasporto pubblico
Trasporto pubblico
100 m
Ricariche auto elettriche Ricariche auto elettriche
Galeata Mevaniola | EnelX
2,5 Km
Scuole Scuole
Scuole
2,2 Km
Supermercati Supermercati
Conad City
270 m
Eurospin
2,1 Km
Negozi Negozi
Negozi
240 m
Bar Bar
Bar Latteria
420 m
Ristoranti Ristoranti
Pizzeria Primula Rossa
380 m
Il Posto delle Briciole
470 m
L’osteria di via Zannetti
2,2 Km
Pizzeria la Rupe
2,2 Km
Mostra tutto

Caratteristiche

Rif.:
61176081
Piano:
Su più livelli di 3
Totale piani:
3
Box:
1
Posti auto:
1
Balconi:
1
Mostra tutto
Prezzo Prezzo
€ 250.000
Rata mutuo Rata mutuo
€ 1.187 / mese
Spese annue Spese annue
€ 0
Proponi il tuo prezzoProponi il tuo prezzo
Immobile valutato con T·Valuta

Classe Energetica

Questo immobile è esente da classe energetica
Anno di costruzione:
1966
Riscaldamento:
Autonomo
Tipo impianto:
A radiatori
Tipo alimentazione:
Metano

Ti interessa visionare l'immobile?

Fissa un appuntamento  Fissa un appuntamento

Richiedi informazioni

Clicca su Leggi per aprire l'informativa
* Questi campi sono obbligatori

Calcola il tuo mutuo

Semplice e senza impegno
Anticipo

( % )
Mutuo

( % )

pochi semplici passi

inserisci i tuoi dati
Questionario completato
Grazie per aver richiesto un appuntamento senza impegno con un nostro Consulente del Credito e Assicurativo.

Hai inserito correttamente tutti i dati necessari e a breve riceverai una e-mail con un link da convalidare per inviare i tuoi dati.
Affiliato
Studio Artusi Srl
Via Duca D'Aosta, 110 47034 Forlimpopoli (FC)

Il nostro staff


  • Greta Brunelli
    Affiliata

  • Ferdinando Formisano
    Affiliato

  • Sara Rocchi
    Coordinatrice
Via Duca D'Aosta, 110 47034 Forlimpopoli (FC)
Zona: Forlimpopoli-Meldola-Bertinoro
Mostra su mappa
Orari: dal Lunedì al Venerdì 9.00-13.00/15.30-20.00 Sabato dalle 9.00-13.00
Affiliato
Studio Artusi Srl
Via Duca D'Aosta, 110 47034 Forlimpopoli (FC)

2026 Tecnocasa Franchising S.p.A. - P. IVA 08365160152 - Via Monte Bianco 60/A 20089 Rozzano (MI). Ogni agenzia ha un proprio titolare ed è autonoma. Privacy policy | Policy utilizzo | Cookie policy